Smart, Simple, Solid Move

Smart, Simple, Solid Move

This very tidy 1990s home delivers an ideal blend of practicality and comfort.
PBR195

House description

A one-piece move, this home requires no re-joining, keeping your relocation process simple, cost-effective, and efficient. Inside, the home feels surprisingly spacious, with well-designed shared areas that make everyday living easy.

Modernised where it counts and meticulously maintained, this home offers light-filled spaces, smart storage solutions, and an easy-living layout that suits families, first-home builders, or anyone seeking a ready-to-move solution.

Key features:

  • Tidy condition, very well cared for
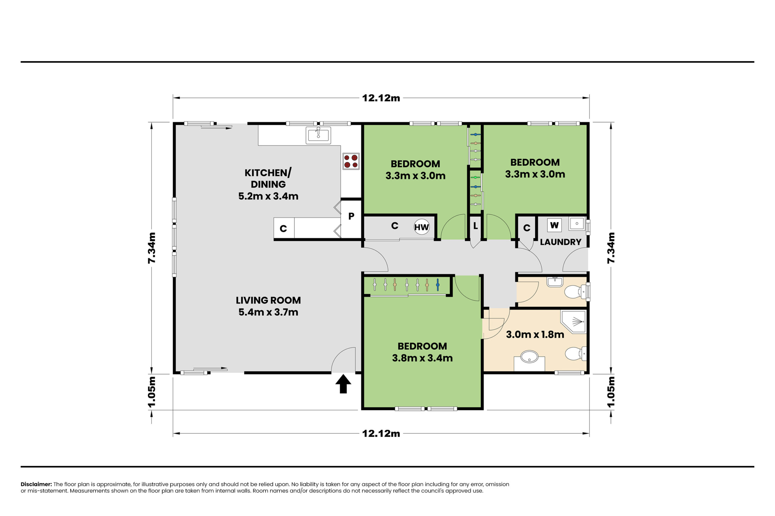
  • 90sqm approx, fibre cement/Hardiplank cladding, aluminium joinery, iron roof
  • 3 bedrooms, each with built-in wardrobes
  • Modern, light-filled kitchen with excellent storage
  • Open, connected flow through living and dining spaces
  • Easy-care bathroom with shower cube, vanity and toilet
  • Practical separate second toilet with hand basin
  • Separate laundry room for added convenience
  • 1-piece relocation, no re-join required

Whether you’re creating a new dwelling, adding a secondary home, or establishing a cost-effective rental, this well-kept gem offers unbeatable simplicity and value.

Price is subject to a site inspection and INCLUDES:

  • Relocation within 100 km of current site
  • NZ3604-compliant standard foundations (pile height & depth)
  • All required paperwork for sign-off on standard foundations
  • GST

Outside of 100kms? No problem! Email us for a quote to deliver within the North Island.

Vitrual Tour, click here

Enquire today to secure this tidy, move-ready home for your site.
Contact Abby today, phone/text: 027 473 6682

Torbay, Auckland

Floor plan

Smart, Simple, Solid Move