Easy-living, Classic & Cosy

Easy-living, Classic & Cosy

Step into simple living with this classic, 1970s weatherboard home. With a warm and inviting feel throughout, it’s the perfect blend of timeless character and practical design.
PBR188

House description

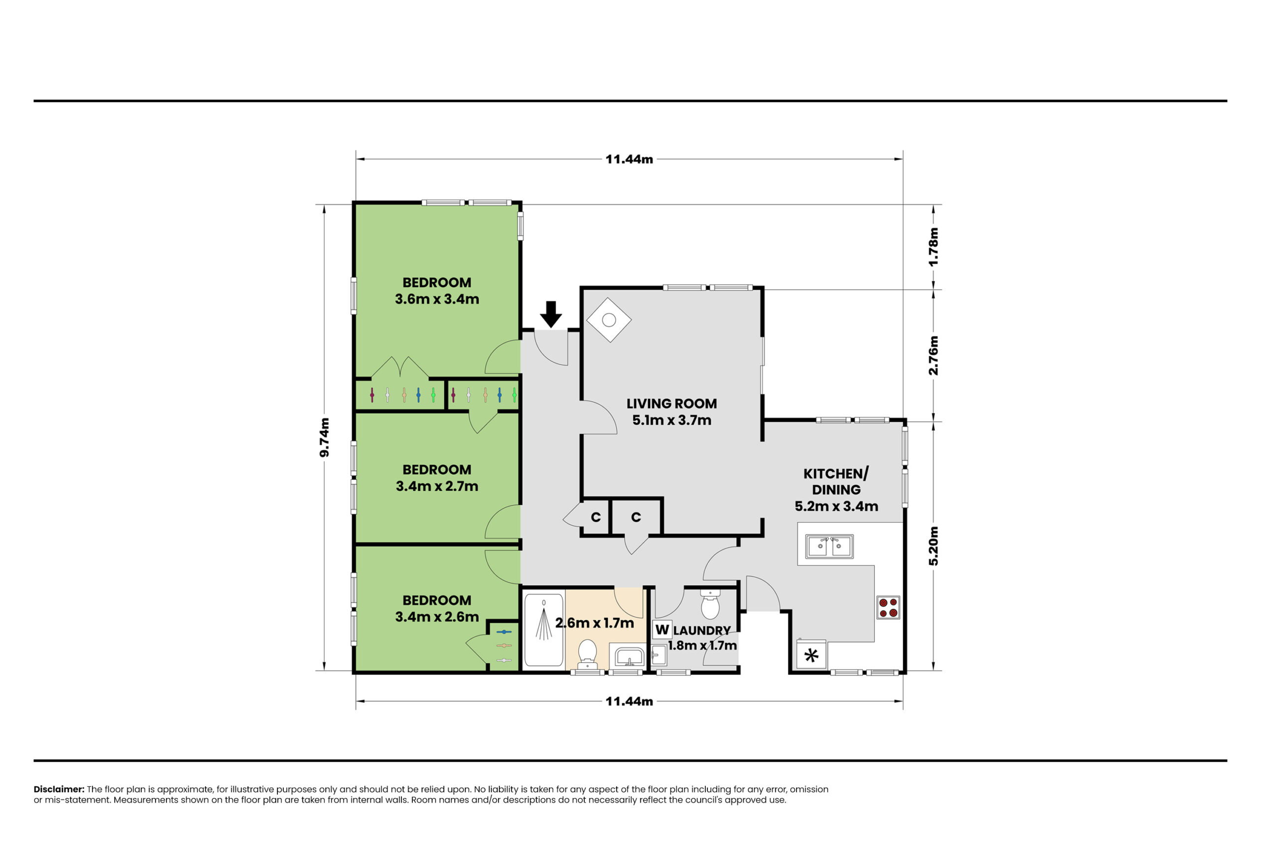
Designed for simplicity and function, the layout flows naturally from one space to the next. With 3 bedrooms tucked away on one side and the living and kitchen areas on the other, it’s a home that just makes sense. At 86sqm, it’s the right size for easy maintenance while still offering all the comforts you need.

Whether you’re looking to start fresh or add to your property portfolio, this home is ready for its next chapter.

Key features:

  • Built solid in the 1970s
  • Sought-after weatherboard cladding with iron roof
  • 3 bedrooms situated away from the living areas
  • Open-flow living into a modernised kitchen with breakfast bar
  • Tidy bathroom with tiled shower, vanity and toilet
  • Handy separate laundry and hallway storage cupboards
  • Wooden joinery and light-filled interiors
  • 86sqm of functional, cosy living

This tidy home is full of potential and ready to be relocated to your ideal site. Whether you’re planning a lifestyle change or investing in a new venture, this is your chance to secure a home that’s as practical as it is charming.

Price is subject to a site inspection and INCLUDES:

  • Relocation within 100 km of current site
  • NZ3604-compliant standard foundations (pile height & depth)
  • All required paperwork for sign-off on standard foundations
  • GST

Book your viewing today and imagine the possibilities this relocatable home could bring!
Contact Abby today, phone/text: 027 473 6682

Floor plan

Easy-living, Classic & Cosy