1930s Charming Bungalow
1930s Charming Bungalow
- $Sold
- 3
- 1
- 142m²
A charming home with many lovely features and special details. Approx 142sqm, 2.5 bedrooms plus 2 sunrooms, this bungalow will be a head-turner for many.
PBR174
House description
- $Sold
- 3 Bedrooms
- 1 Bathroom(s)
- 142m² Floor area
- Built: 1930
Key features:
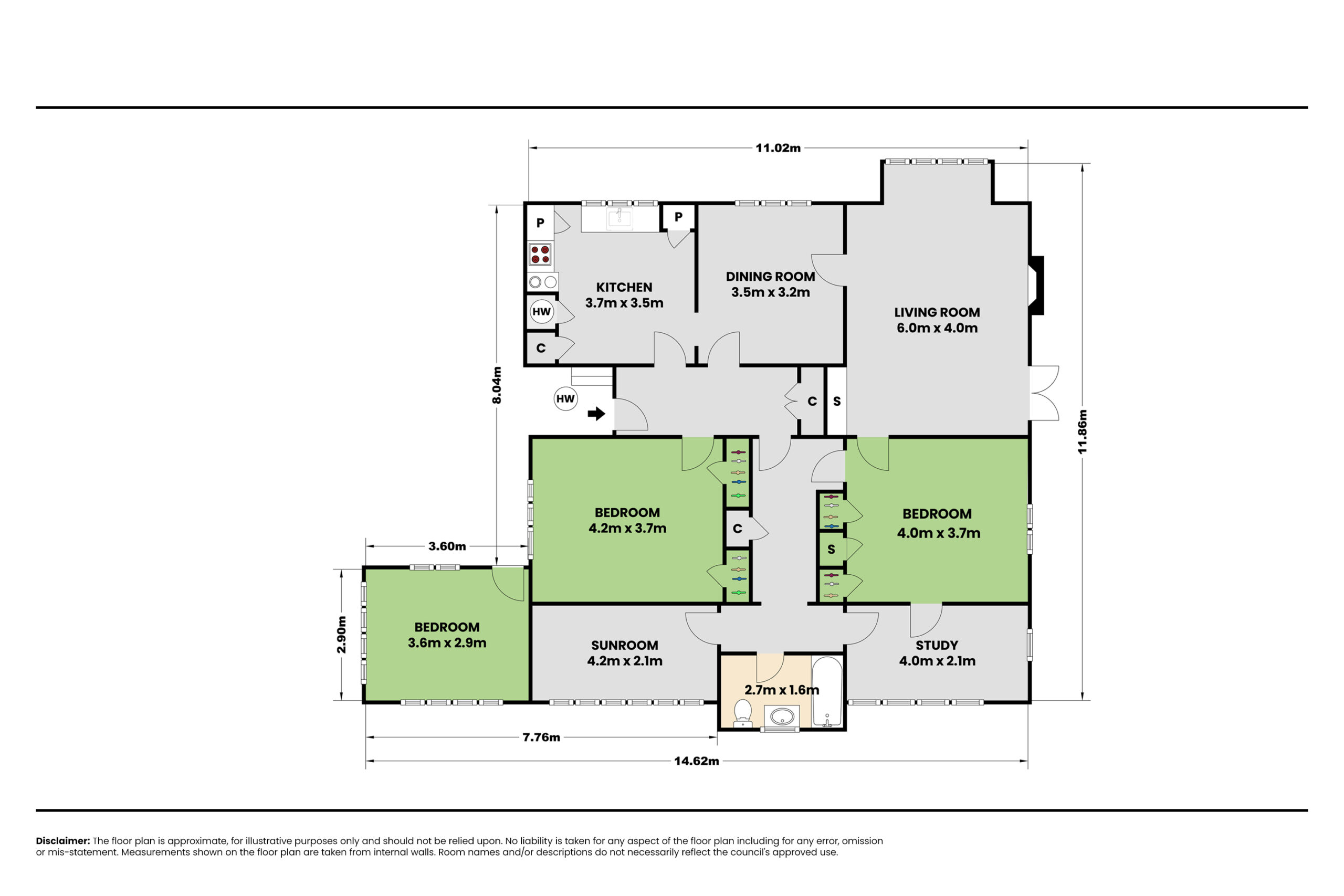
- Generously sized living room (6m x 4m) with a nook window, double French doors to the outside and built-in shelves, this space includes a slider glass panel door dividing this area from the dining room.
- The light-filled dining room has a serving window to the kitchen and lovely feature windows with rose-coloured glass.
- Kitchen area at 3.7m x 3.5m is just waiting for a makeover – so many possibilities in the space.
- 2.5 bedrooms plus 2 separate sunrooms/offices. -Approx 142sqm, there is so much space and potential with this floor plan.
- Iron roof, weatherboard cladding and wooden joinery throughout.
This sweet yet spacious bungalow with its unique style and charm is sure to impress.
Price is subject to a site inspection and INCLUDES:
- Relocation within 100 km of current site
- NZ3604-compliant standard foundations (pile height & depth)
- All required paperwork for sign-off on standard foundations
- GST
Outside of 100kms? No problem! Email us for a quote to deliver within the North Island.
Contact Abby today, phone/text: 027 473 6682